GSEVEN
Home
About
Online store
Web comic
Hakodate ginzaken
Client:(株)Found(在職中に制作)
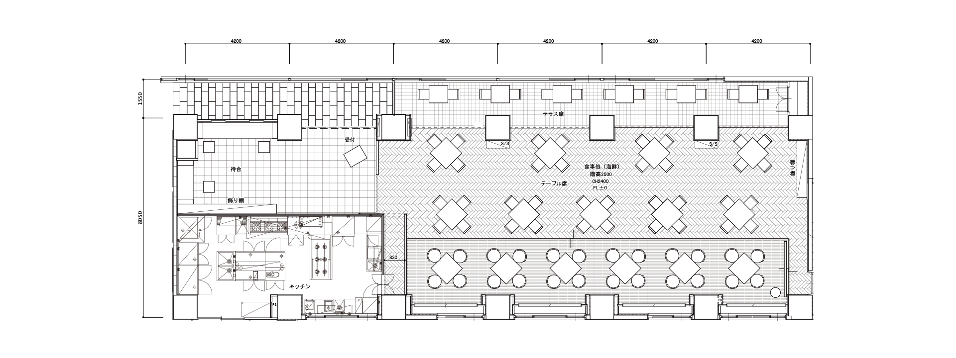
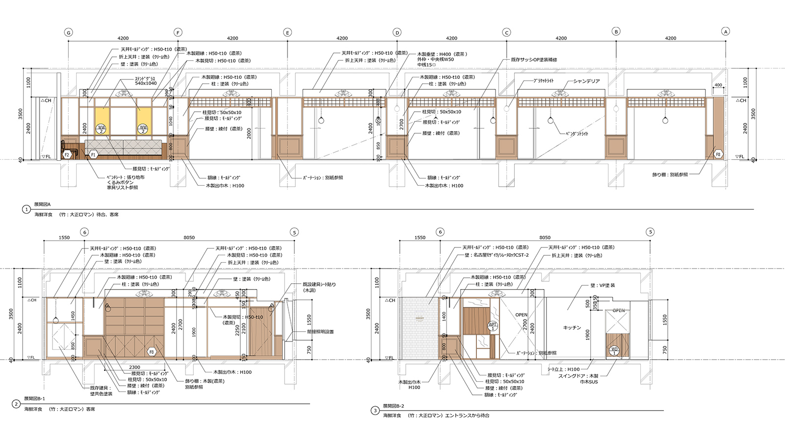
中華レストランの店舗設計を担当しました。
デザインコンセプト提案、設計、監理。Vectorworks/Illustrator使用。
Posted in
INTERIOR
Next
→